Koru Cabins
  • 8.4x2.7m Tiny Home 8x2.7m Tiny Home 7.2x2.7m Tiny House 6x2.7m Sleepout Custom Floor Plans Optional Extras
  • Gallery
  • Testimonials
  • Company Team
  • FAQ
  • Contact
Koru Cabins
  • Cabins/
    • 8.4x2.7m Tiny Home
    • 8x2.7m Tiny Home
    • 7.2x2.7m Tiny House
    • 6x2.7m Sleepout
    • Custom Floor Plans
    • Optional Extras
  • Gallery/
  • Testimonials/
  • About Us/
    • Company
    • Team
  • FAQ/
  • Contact/
IMG_4640.jpg
Koru Cabins

Examples of Custom Floor Plans We Have Built

Koru Cabins
  • Cabins/
    • 8.4x2.7m Tiny Home
    • 8x2.7m Tiny Home
    • 7.2x2.7m Tiny House
    • 6x2.7m Sleepout
    • Custom Floor Plans
    • Optional Extras
  • Gallery/
  • Testimonials/
  • About Us/
    • Company
    • Team
  • FAQ/
  • Contact/

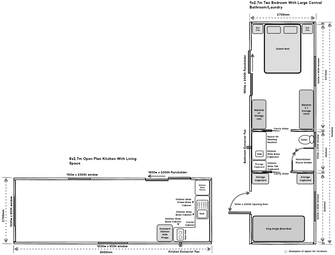
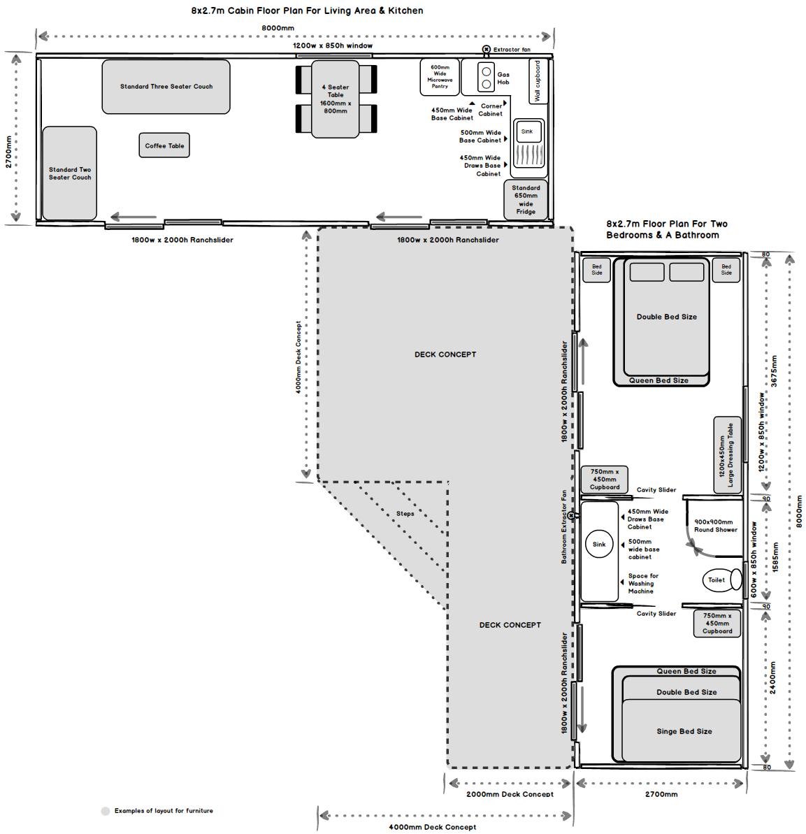
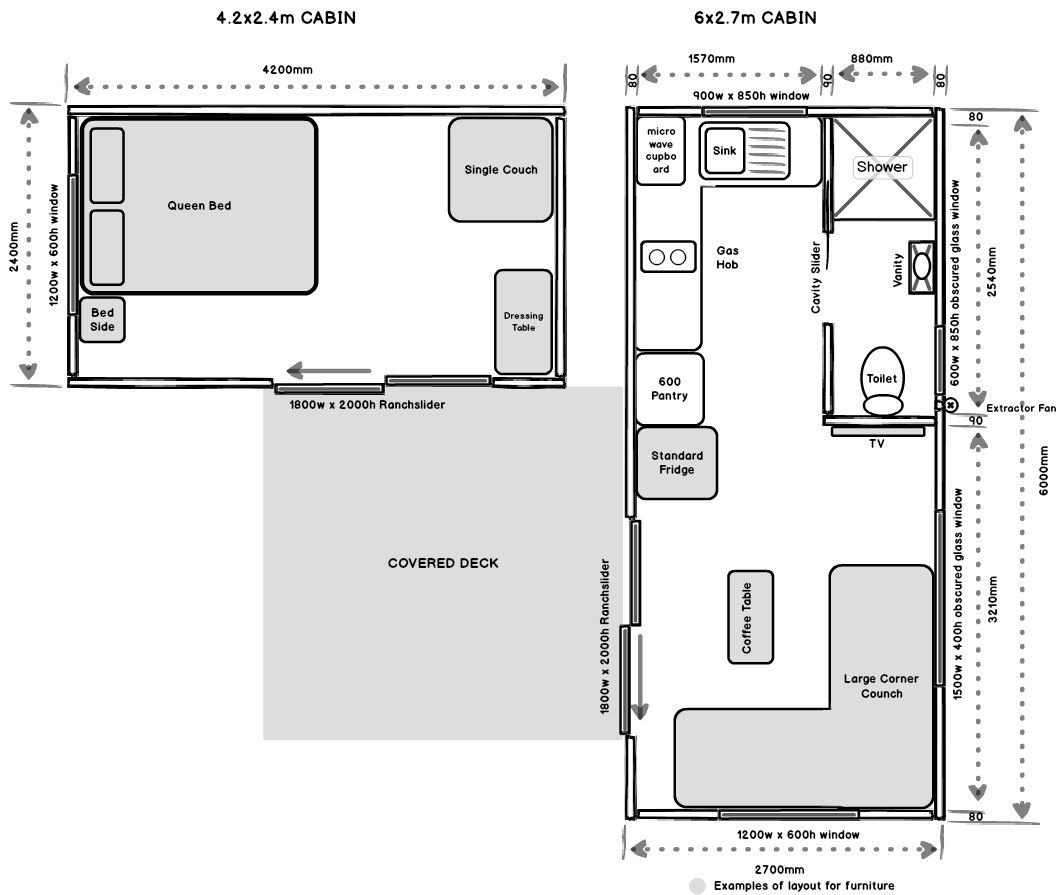
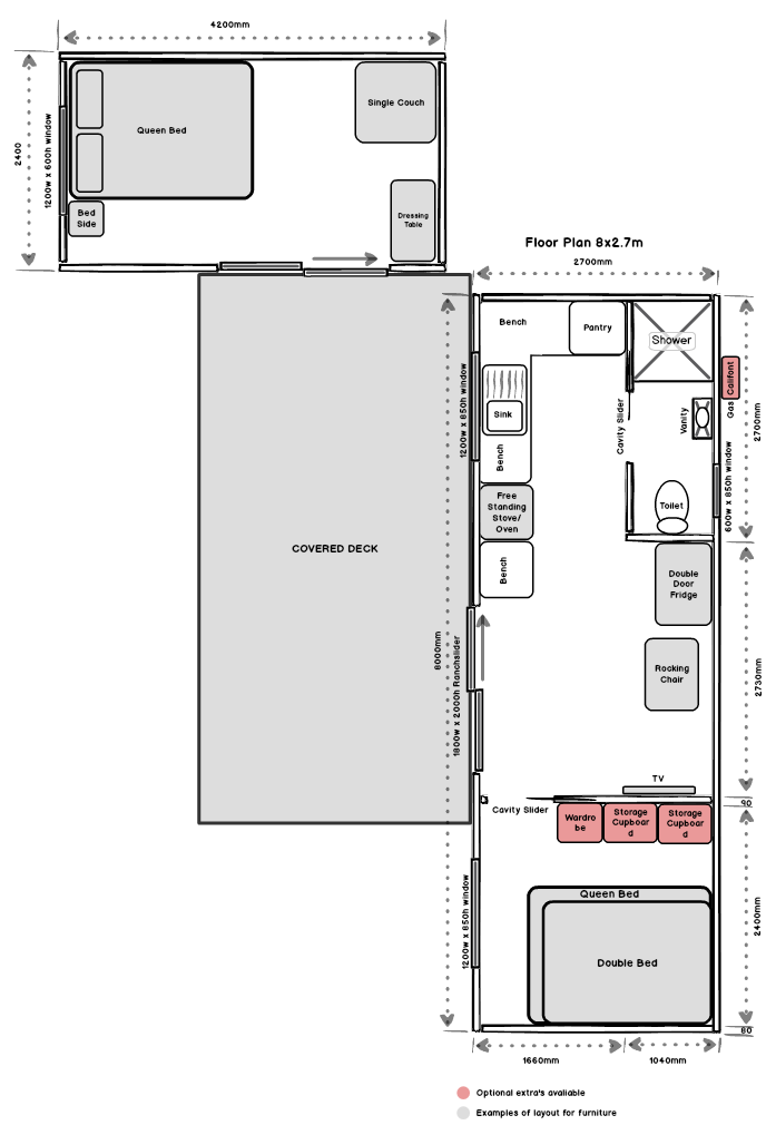
Here are some custom floor plans we have built in the past. We can work with you to create a floor plan to suit your needs.

 

View fullsize 8m Full Bathroom.png
View fullsize 8m floor plan with kitchen & bathroom on ends.png
View fullsize 8x2.7m Tiny House For Elderly.png
View fullsize 8.4 Floor Plan - Center Kitchen & Bathroom.png
View fullsize 8.4 Floor Plan - Kitchen & Bathroom.png
View fullsize 8.4 Floor Plan - Two Bedroom, Kitchen & Bathroom.png
View fullsize Floor Plan Concept 1.png
View fullsize Floor Plans Site Layout.png
View fullsize Multiple Cabins.png
View fullsize Floor Plan.png
View fullsize 8m 3 bedroom with bath and 7.2m with kitchen, bathroom and living room.gif
View fullsize 7.2 Floor Plan - 2 bedrooms with bathroom.png
View fullsize 8m Multi Cabin Setup.png
View fullsize 6m&4.2m cabins.png
nzowned_small.jpg
Trademe Icon Grey.png